Smart Design, Exceptional Value
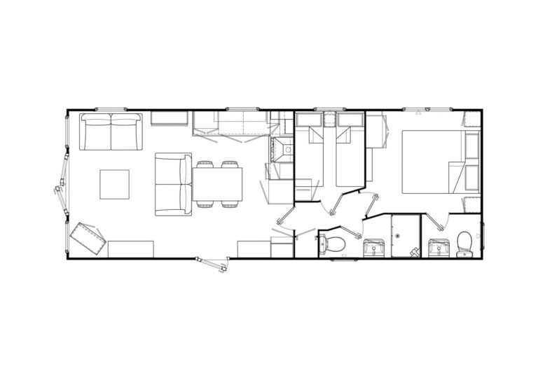
The Regal Retreat is proof that you don’t need the largest footprint to enjoy premium luxury. Designed for those who appreciate a modern, high-quality finish, this 33ft model is engineered to maximise every inch of space. It’s a beautifully finished sanctuary that offers a fantastic balance of sophisticated style and everyday practicality.
A Modern Lounge with Countryside Charm
Step into an open-plan living area that feels instantly calming. The Retreat features a neutral, countryside-inspired colour scheme that provides the perfect canvas for your personal touches.
-
Flexible Seating: Includes a comfortable freestanding sofa with a built-in sofa bed, making it easy to host extra guests.
-
Contemporary Touches: A stylish display and TV unit serves as the focal point, while built-in USB sockets ensure your devices are always charged and ready for the next day’s adventure.
The Practical Kitchen & Dining Hub
The kitchen in the Retreat is designed for owners who actually love to cook. It moves away from “caravan-style” compromises and offers:
-
Domestic-Sized Units: Ample storage and workspace that feels just like home.
-
Fully Integrated: Comes complete with an integrated fridge-freezer and microwave, keeping the lines of the kitchen sleek and tidy.
-
Fixed Dining: A dedicated area for family meals or a morning coffee while planning your walk.
Your Private Sanctuary: The Master Suite
The master bedroom is a masterclass in clever storage. Designed to be a restful retreat, it features a large wardrobe and essential home comforts to ensure you wake up refreshed. The unit is completed by a modern, fully-fitted bathroom with a high-quality, spacious shower enclosure.
Built for All-Season Comfort
This isn’t just a summer retreat. The Regal Retreat is built to keep you cosy all year round, featuring:
-
Gas Combi Central Heating & Double Glazing
-
Full Insulation: Highly insulated floors, walls, and roof to keep the heat in and the bills down.
-
Quality Construction: Backed by Regal’s reputation for durability and craftsmanship.
Why Choose the Regal Retreat at Bank Farm?
-
Unbeatable Value: Premium style and brand-new quality for just £66,000.
-
Clever Layout: Every inch of the 33×12 frame is utilised for comfort.
-
Prime Location: Situated on a great pitch within the beautiful Bank Farm Holiday Park.
This is a smartly appointed, high-spec holiday home that represents a genuine investment in your lifestyle. Book your private viewing today and see how the Retreat earns its name!
Location: Bank Farm →

