Your Affordable Sanctuary by the Water
The Regal Retreat lives up to its name, offering a comfortable, cosy, and truly sophisticated escape. This 38×12 model is perfectly positioned on a highly desirable brookside pitch, where the soothing sounds of the water meet expansive countryside views. It is the ultimate choice for those seeking a modern, high-quality holiday home that doesn’t compromise on space or style.
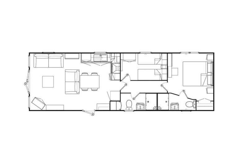
A Relaxed & Sophisticated Living Space
The interior design of the Retreat is focused on creating a “home-from-home” feel with a touch of contemporary elegance.
-
The Lounge: An open-plan area featuring a freestanding sofa (with a built-in sofa bed for extra guests). It boasts a unique bookshelf/display unit and excellent storage solutions, keeping your sanctuary clutter-free.
-
Modern Connectivity: Built-in USB sockets are strategically placed throughout the lounge, ensuring your devices stay charged while you unwind.
The Contemporary Kitchen & Dining Area
Designed for the modern owner, the kitchen and dining space combines sleek aesthetics with everyday practicality.
-
Full Integration: Enjoy the convenience of a domestic-sized kitchen featuring an integrated fridge-freezer and integrated microwave.
-
Flexible Dining: Unlike many models, this features a freestanding dining area for four, allowing you to adjust the space to suit your needs, whether it’s a family meal or a social gathering.
An Indulgent Master Suite
Taking advantage of the 38ft footprint, the master bedroom is a standout feature of this model.
-
King-Size Comfort: Features a luxurious king-size bed with a stylish wall-mounted headboard.
-
Boutique Storage: Complete with fitted wardrobes and bedside cabinets, providing a restful and organised environment.
-
The Guest Room: A well-appointed space with its own USB charging points and plenty of light.
Built for the Great British Weather
The Retreat is engineered for year-round enjoyment at Bank Farm, featuring:
-
Gas Combi Central Heating & Double Glazing
-
Superior Construction: Fully insulated floors, walls, and roof to ensure you stay warm in the winter and cool in the summer.
-
Ready to Go: Sited on a premium brookside pitch, this brand-new unit represents unbeatable value for its size and specification.
Why Choose the Regal Retreat 38×12?
If you refuse to compromise on style, storage, or those essential luxury touches like a king-size bed, this is the answer. It’s a smartly appointed holiday home that feels much more expensive than its price tag suggests.
Don’t miss out on this brookside beauty! Contact us today to arrange your private viewing and see those views for yourself.
Location: Bank Farm →

